业主酷爱的老友记,被我们融进了她的家里。
本案的业主是一对90后夫妻,他们有着各自的小爱好,也对居住空间有着自己的偏好和理解。想以此来装饰他们的小家,在柴米油盐中保持对生活的热爱。
作品的设计风格以轻法式田园风为主,不追求浮夸的造型,复杂的线条,更注重功能性与日常生活需求,试图通过简化装饰来打造优雅而不费心的居住空间。
改造前:
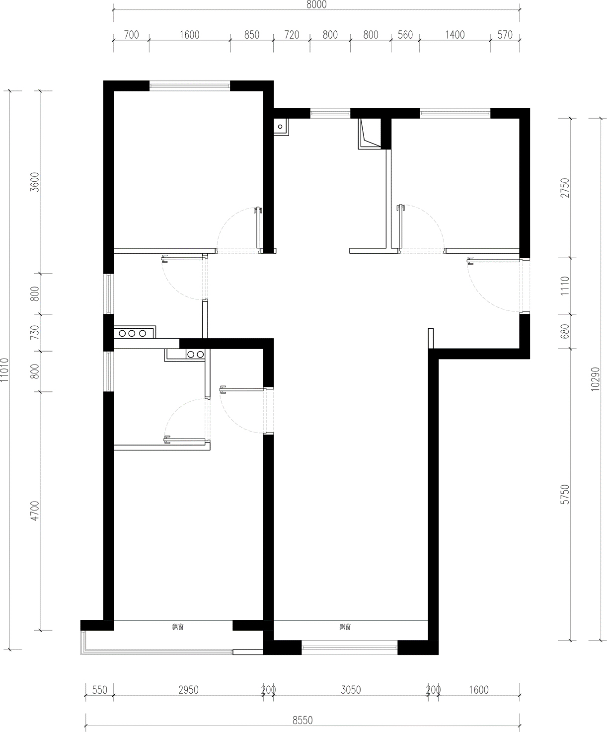
房子是三室的格局,建筑面积是101㎡,实际套内面积为77㎡,整体上看每个空间都略显局促,并缺少足够的收纳空间。
改造后:
设计师与业主进行充分的沟通后,决定把进门右侧儿童房墙面向内移,厨房墙面向外扩,增加一组走廊家政收纳柜。
再适当缩小主卧空间,增加主卫面积之后,实现了双台盆、盥洗、马桶、沐浴的干湿分离。
多功能房适当缩小,让给次卫空间,同样实了现淋浴、马桶干湿分离,将多功能房墙面延长,还有了洗手台的位置。
经过设计之后,一改之前卧室与卫生间空间紧凑的格局,增加了大面积的收纳,让业主获得了一个灵活舒适的起居空间。
玄关
入户玄关做了一整排的收纳柜,并结合了业主的爱好—乐高,做了乐高展示区,是业主生活中的诗和远方!
凹龛可以随手放置入户时的零碎物品,家政柜可以作为客餐厅收纳的补充。
餐厅
玄关柜连接着餐边柜,让空间整体更统一。餐边柜上的咖啡机,满足了业主喝咖啡的喜好,打造出一处充满仪式感的居家咖啡角。
柜体下方做了一个凹槽,平时两个人用餐时可以把餐桌放进去,能释放过道的空间,当有客人时再将餐桌移出来,满足多人用餐的需求。
整个空间以白色墙面奠定简洁通透的基调,搭配胡桃木色家具传递自然温暖的质感,再运用跳色元素点睛:蓝色餐椅的明快、橙色甜甜圈壁灯的活泼。在打破单调感的同时,形成视觉焦点,平衡了轻法式的素雅与个性表达的鲜活。
相关文章推荐










评论(0)