粗粝空间中的精密日常
在场,是事情正在发生的状态。在消费之外,商业空间重新被期待变成真实情节的发生现场,不断被看见、被使用、被分享。
∇ 外立面 Facade ©In
在场的日常|慢生活与快商业
ON-SITE Daily Life | Where slow living meets fast commerce
愚园路承载着两种并存的城市性格:梧桐树荫下的缓行、不同年代的建筑,以及不断更新的生活状态;同时通勤、商业与社交活动交织叠加,使街区始终保持着克制而有张力的繁忙。
Yuyuan Road embodies two parallel urban characters: the slow pace beneath plane trees, buildings from different eras, and ways of living that continue to evolve. At the same time, commuting, commerce, and social activities overlap, keeping the street in a dynamic state of activity.
设计通过对空间、工艺与体验的重新组织,回应这里的时间感与生活气质,在品牌表达与社区生活之间建立一种自然的连接。
∇ 老社区中的新日常New routines in the old community ©ouyang
∇ 沿街窗口 Street-facing windows ©In
∇ 树影中的烘豆工坊 Coffee Bean Roasting in the shade of trees ©几木
在场的体验|不只是消费
ON-SITE Experience| More than consumption
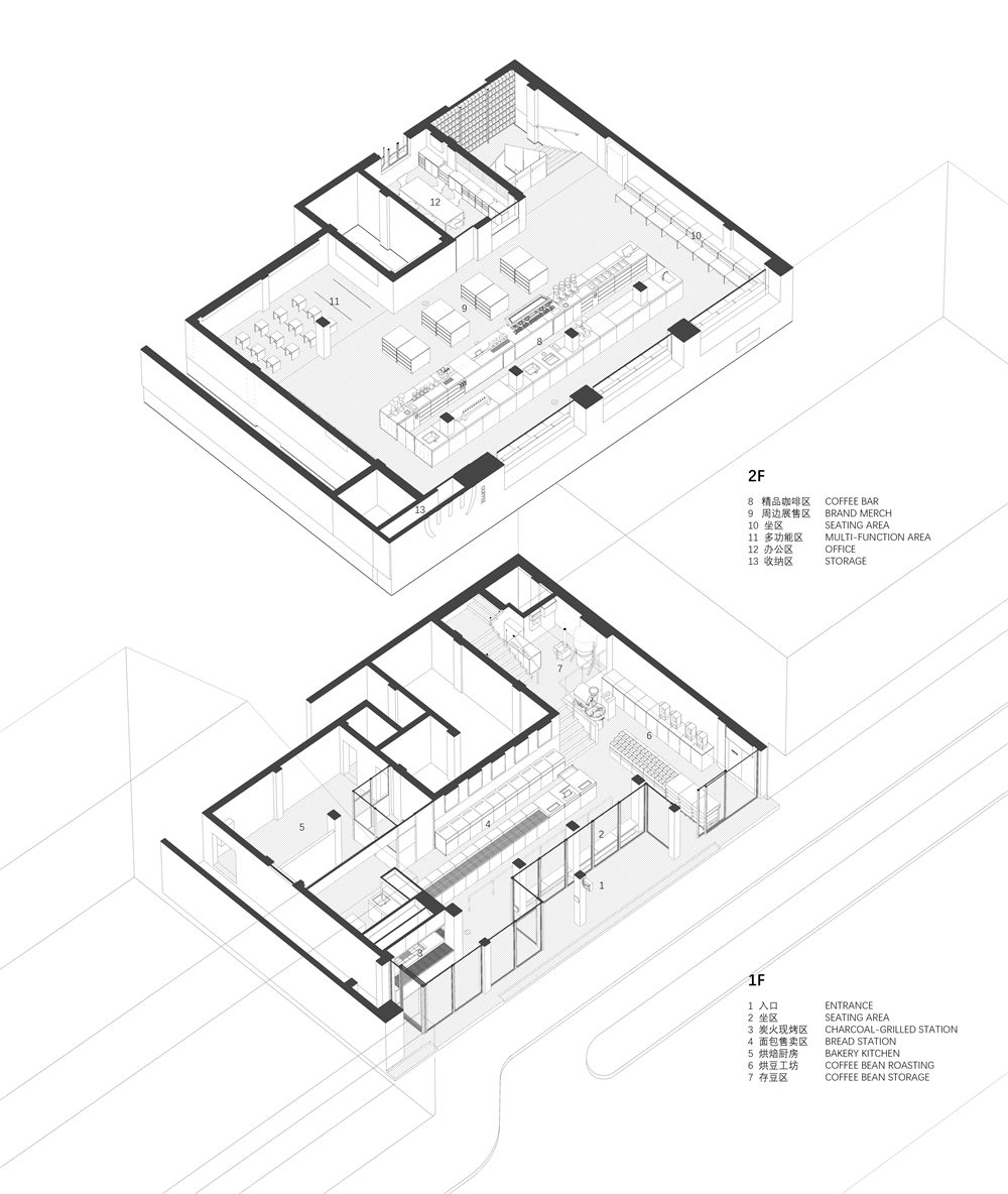
作为三立方首家线下体验店,更强调体验、交流与品牌认同的建立。在业态上融合面包制作、咖啡豆烘焙、咖啡制作和会员交流场景,对街道既有生活结构进行补充。
∇ 空间布局 Space planning ©具场
∇ 面包售卖区 Bread sales area ©In
相关文章推荐

















评论(0)